台南市透天出售

台南市透天出售|A3佳里區番子寮朝南大地坪孝親房車墅

A3佳里區番子寮朝南大地坪孝親房車墅 台南買屋專家
列印
  • 售1558萬
    1. 類型:透天
    2. 總登記坪數:
    3. 每坪單價:
    4. 地址:台南市佳里區番子寮
    1. (煩請告知聯絡人,您是在House-Info房屋網看到廣告,感恩幫忙)
    2. 0911-559351
    1. 市話:
    2. 公司名稱:
    3. 公司地址:
    A3佳里區番子寮朝南大地坪孝親房車墅 台南買屋專家-QR CODE 我要留言
物件介紹
詳細資料
銷售狀態
帶看中
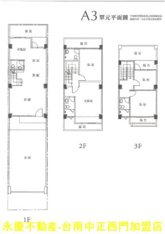
格局
5房,2廳,4衛
屋齡
3年
車位
室內車庫
座向
朝南
所在樓層
共3樓
電梯
沒有
面前道路
6
瀏覽人次
40人次
周邊環境
鄰近學區
延平國小,佳里國中
坪數說明
建物登記總坪數
51.752
主建物
48.197
附屬建物
3.554
土地登記總坪數
49.716
特色描述

(1)基地地質改良樁加筏式基礎雙重抗震設計,再加全棟防水處理。



(2)前落地窗是5+5mm膠合玻璃隔音氣密再升級,保有家的寧靜。



(3)廚房採用櫻花廚具經典三機,衛浴為日系TOTO極簡衛浴。



(4)Kwikset四合一智慧電子鎖,指紋、密碼、一卡通皆能整合。



(5)近佳里市區,離塵不離城,生活機能優異,大地坪,好停車。

台南佳里透天-0
台南佳里透天-0
台南佳里透天-1
台南佳里透天-1
台南佳里透天-2
台南佳里透天-2
台南佳里透天-3
台南佳里透天-3
台南佳里透天-4
台南佳里透天-4
台南佳里透天-5
台南佳里透天-5
台南佳里透天-6
台南佳里透天-6
台南佳里透天-7
台南佳里透天-7
台南佳里透天-8
台南佳里透天-8
台南佳里透天-9
台南佳里透天-9
台南佳里透天-10
台南佳里透天-10
台南佳里透天-11
台南佳里透天-11
台南佳里透天-12
台南佳里透天-12
台南佳里透天-13
台南佳里透天-13
物件留言
請注意,如果您詢問的內容與物件不相符合或是廣告,經過審核,系統將會直接刪除您的發問內容
等待圖示
相似物件
免責聲明:House-Info房屋網平台系統為租用式開放房屋買賣網站建置平台,僅提供會員查詢-台南市,佳里區,透天-等房屋資訊參考,並不涉入任何諮詢、交易。 物件(服務)聯絡人公佈的資訊、文字、照片、圖形、產權、廣告內容、或其他資料若有不實或違法情事,或與客戶聯絡交易過程中若衍生民事或刑事等法律問題,皆與House-Info房屋網站無關,所有商標、文章、名稱等版權,皆歸屬原著作者所有!